Проектирование / Строительство
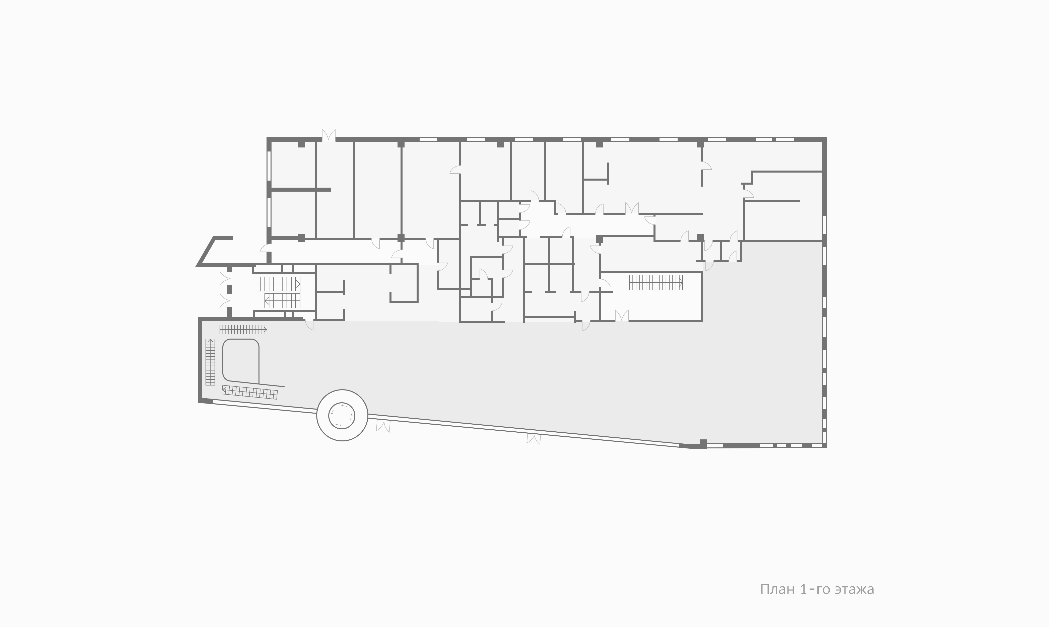
Здание гостиницы, имеющее собственный запоминающийся образ, делающий её заметной на фоне окружающей застройки благодаря активному решению угловой и цокольной части объема. Здание расположено на сложном рельефе местности - участок имеет большой перепад высот, - в сложном градостроительном ландшафте.
П. Андреев, А. Похомов, А. Бутырин
ул. Земляной Вал 70, Москва
П. Андреев, А. Похомов, А. Бутырин
Здание гостиницы, имеющее собственный запоминающийся образ, делающий её заметной на фоне окружающей застройки благодаря активному решению угловой и цокольной части объема. Здание расположено на сложном рельефе местности - участок имеет большой перепад высот, - в сложном градостроительном ландшафте.
Проектирование / Строительство
Здание гостиницы, имеющее собственный запоминающийся образ, делающий её заметной на фоне окружающей застройки благодаря активному решению угловой и цокольной части объема. Здание расположено на сложном рельефе местности - участок имеет большой перепад высот, - в сложном градостроительном ландшафте.
П. Андреев, А. Похомов, А. Бутырин

Проектирование / Строительство
П. Андреев, А. Похомов, А. Бутырин
Здание гостиницы, имеющее собственный запоминающийся образ, делающий её заметной на фоне окружающей застройки благодаря активному решению угловой и цокольной части объема. Здание расположено на сложном рельефе местности - участок имеет большой перепад высот, - в сложном градостроительном ландшафте.













2016 -2021