Проектирование
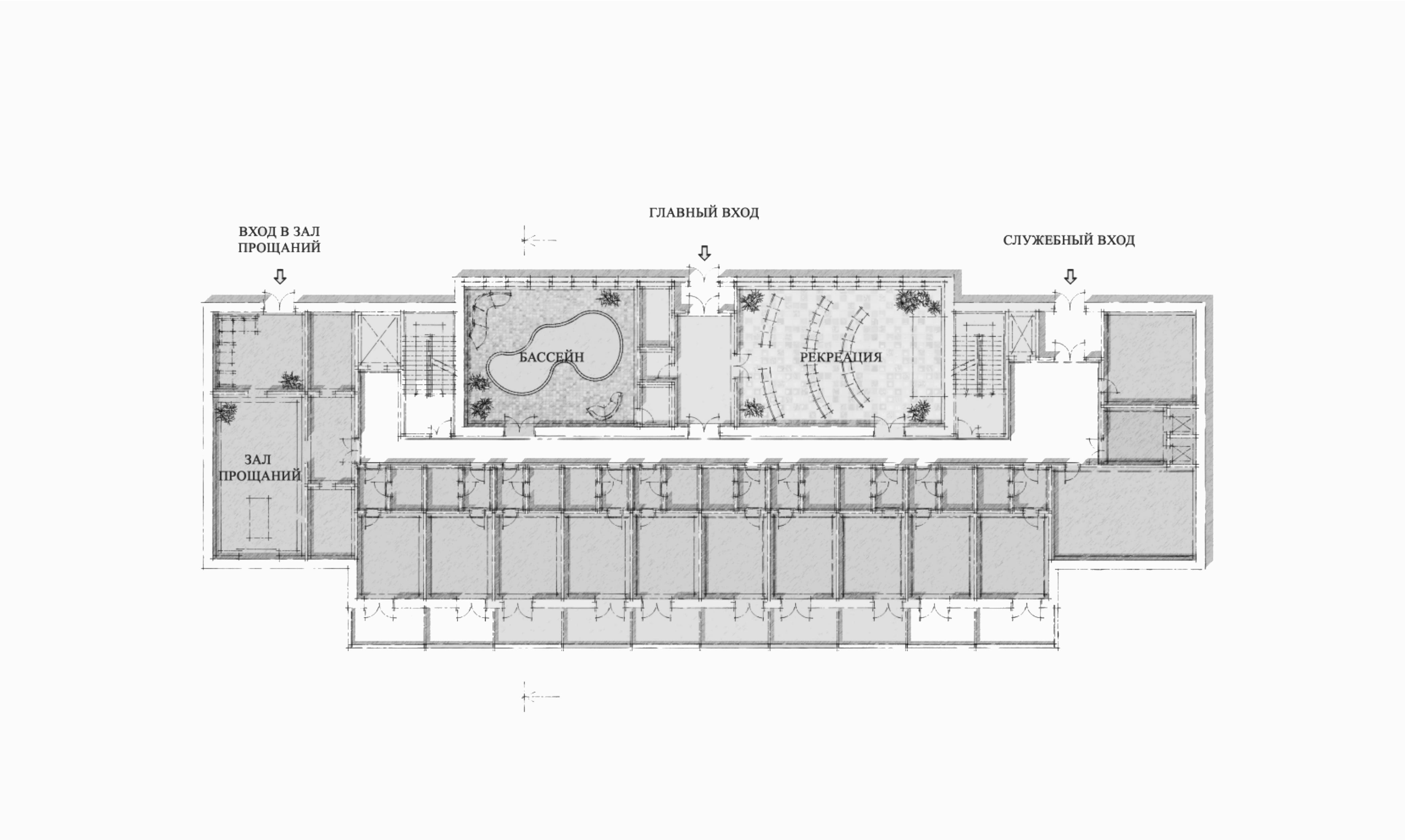
Конкурсное предложение по реконструкции школьного здания для строительства Хосписа
П. Андреев, Е. Андреев
П. Андреев, Е. Андреев
Конкурсное предложение по реконструкции школьного здания для строительства Хосписа
Проектирование
Конкурсное предложение по реконструкции школьного здания для строительства Хосписа
П. Андреев, Е. Андреев

Проектирование
П. Андреев, Е. Андреев
Конкурсное предложение по реконструкции школьного здания для строительства Хосписа










