Проектирование
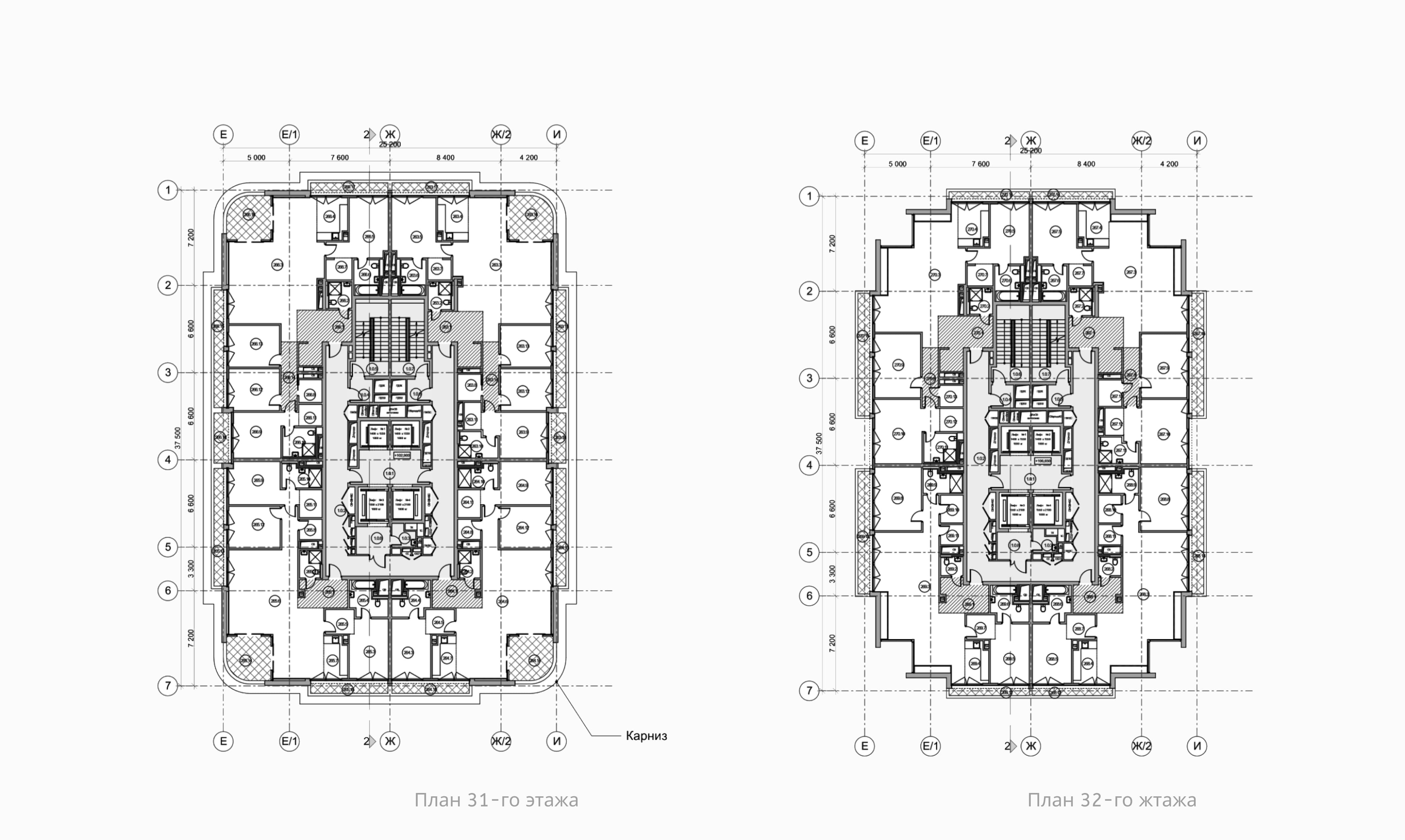
Проект и строительство многоэтажного жилого комплекса в силистике традиционных решений архитектура Нью Йорка 30х годов с активным силуэтным завершением обеих башен.
П. Андреев, А. Пахомов, Е. Андреев, М. Сафронов
улица Лобачевского, 3, Москва
П. Андреев, А. Пахомов, Е. Андреев, М. Сафронов
Проект и строительство многоэтажного жилого комплекса в силистике традиционных решений архитектура Нью Йорка 30х годов с активным силуэтным завершением обеих башен.
Проектирование
Проект и строительство многоэтажного жилого комплекса в силистике традиционных решений архитектура Нью Йорка 30х годов с активным силуэтным завершением обеих башен.
П. Андреев, А. Пахомов, Е. Андреев, М. Сафронов

Проектирование
П. Андреев, А. Пахомов, Е. Андреев, М. Сафронов
Проект и строительство многоэтажного жилого комплекса в силистике традиционных решений архитектура Нью Йорка 30х годов с активным силуэтным завершением обеих башен.















2020-2022